Home Up Lazy Builders PA 70 cm 2 m + 6m 2 m 6 m 23 cm Exper. Builders PA

Power Amplifier Projects

for Experienced VHF/UHF PA Builders

 

Important notes:

All connections between RF parts, and also connections to ground MUST BE as short as possible! This is VHF, not HF, in spite that designs may looks like HF! Hi! See mechanical layout of PA designs below!

If input circuit trimmers, need to be at maximum or minimum capacity during adjusting, it is necessary to change the length of the cable between the exciter and the amplifier itself. The optimal length of the cable should be determined experimentally to obtain adjustment with approximately the calculated values of capacitances. This experimentally determined cable should always be used when operating the amplifier. A change of exciter could occasionally require a new length of cable to be determined.

NEW !

20 kW VHF Power Amplifier

1 x GU36B-1

initial and final design:

PDF file

Built by: Miška, YU7MS and Pali, YU7PS

RX1AS QRO PA Pictures

Sergei Spiridonov, RX1AS

 

NEW !

5 kW VHF Power Amplifier

Calculated, simulated and optimized using new, recently developed

YU1AW Dynamic Tube Model

PANICK V

2 x 3CPX1500A7

PANICK V.zip  (11 MB)

Built by: Nick, HB9EFK and Enrico, HB9SV

Measurements on finished PA:

http://www.youtube.com/watch?v=f2wEQdIh1vQ

 


 

NEW !

VHF 2-Bander

6m and 2m PA

2B-1PA

1xGU84B

Calculated, simulated and optimized using new, recently developed

YU1AW Dynamic Tube Model

 

                                  Schem. Diag.     Mech. Layout          Plate Circuit        In&Out Isolation  Crossover Isolation

                              

GU84B 2B-1PA DATA

                     Gain (S21)              Power                 Efficiency           Input SWR            Voltages

6m:                       

  2m:                     

Download .ZIP file (580kB)

 


 

NEW !

VHF 2-Bander

6m and 2m PA

2B-1PA

1xGU74B

Calculated, simulated and optimized using new, recently developed

YU1AW Dynamic Tube Model

 

                                  Schem. Diag.     Mech. Layout          Plate Circuit        In&Out Isolation  Crossover Isolation

                              

GU74B 2B-1PA DATA

                     Gain (S21)              Power                 Efficiency           Input SWR            Voltages

6m:                       

  2m:                     

Download .ZIP file (585kB)

 


 

NEW !

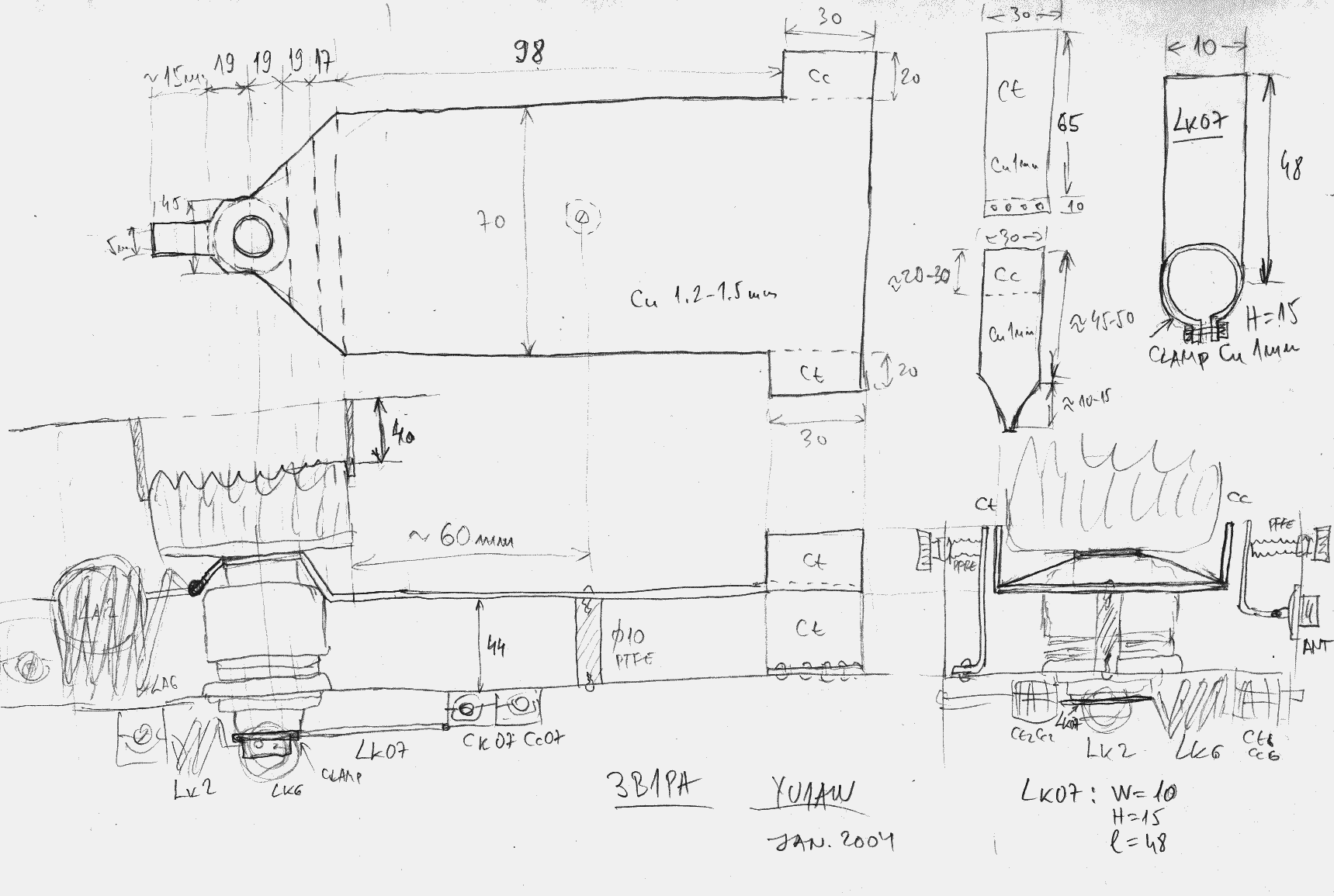
VHF/UHF 3-Bander

6m, 2m and 70cm  PA

3B-1PA

1xGS31B

Calculated, simulated and optimized using new, recently developed

YU1AW Dynamic Tube Model

 

                      Schem. Diag.    Mech. Layout          Plate Line      Input Isolation    Output Isolation

                               

                   Gain (S21)              Power             Efficiency           Input SWR            Voltages

6m:                       

2m:                       

70cm:                   

 

Home Up Lazy Builders PA 70 cm 2 m + 6m 2 m 6 m 23 cm Exper. Builders PA