Accueil
F6FCO
Ondes courtes
Le radioamateurisme
Station
Manipulateurs
Divers radio
Mecatronique
Robotique
CNC
Imprimante 3D
Electronique
Usinage
Divers
Travail du bois
Petits trucs
Divers
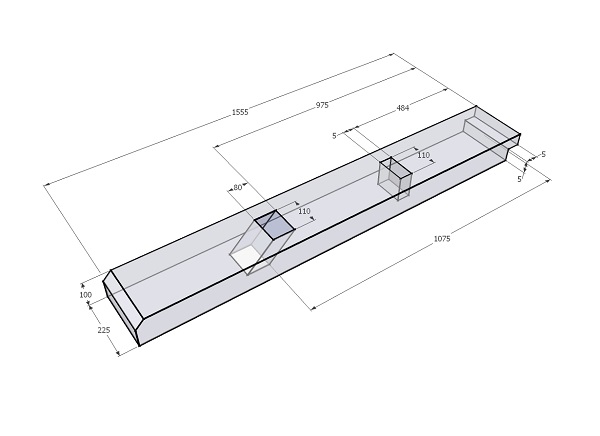
Marquisette
Pas de commentaires, c'est juste qu'il fallait que je construise une marquisette.