GE Master PRO

01/02/07

Home
Up
Mpro model #
TX PINS
RX PINS
AC EP38 PINOUTS
TIPS1
W4XE TIPS
WB5WPA

 

"W4XE Repeater Tech page ©"
 

 

 

.

GE Mastr Pro Deskmate Repeater Station

Here is a very popular series of radios. Historically, these replaced the all tube GE 'Prog lines'. There were later versions of this Master Pro series called the Royal Pro. Some solid state TX versions do exist. Finally, GE produced the Master II which were all solid state. There were a few other series in-between, but they don't seem to be as popular with the ham community.

The GE Master Pro radios are mostly solid state. The receiver is all solid state and has an excellent front end selectivity for dense RF sites. While perhaps not as sensitive as a newer technology radio, it is capable of 0.5 uV and performs very well using an outboard RF preamp. The TX has several tubes in the final RF PA. It is capable of a solid 60 Watts of output power on the uhf band and 100W on the VHF band. While some people dont like these older tube radios, they have provided years and years of dependable service and will continue to do so.

The main disadvantage of using one of these in the repeater service is the high VDC required to run the TX tubes. Many discard the TX strips altogether and just use the all solid state receivers for main repeater receivers, linking, voting or monitoring strips. However, the base station Deskmate (see photo above) AC power supply is not very hard to find.

 

There are several things I like about this series:

bulletExtremely easy to tune. A DC analog voltmeter is all that is required.
bulletMost versions do not require any channel elements. Just plug in the xtal. (some later rx's needed a channel element)
bulletLow cost / High performance
bullet30, 50, 150, 450 MHz strips both rx & tx are interchangeable. Excellent for cross linking!
bulletAn AC power supply is more than one fourth the cost of a comparable 12 VDC high current supply needed for a Master II or equivalent solid state rig
bulletThe mobile radio is separated into 3 distinct boxes. The tx, rx and DC-DC switching power supply.
bulletThe mobile radio can be broken down in a matter of minutes into the tx & rx strips ready to be placed into the AC power supply for repeater service.
bulletIn only a few minutes a repeater tx or rx can be unbolted and another spare put in its place. Instant repeater back in service repairs!
bulletThe mobile radios are not 'valued' anymore and are an excellent source for spare parts, including the expensive RF PA tubes.
bulletBuilt in cabinet heater for cold winter sites. The tubes and PS give off enough heat to keep the cabinet nice and toasty.

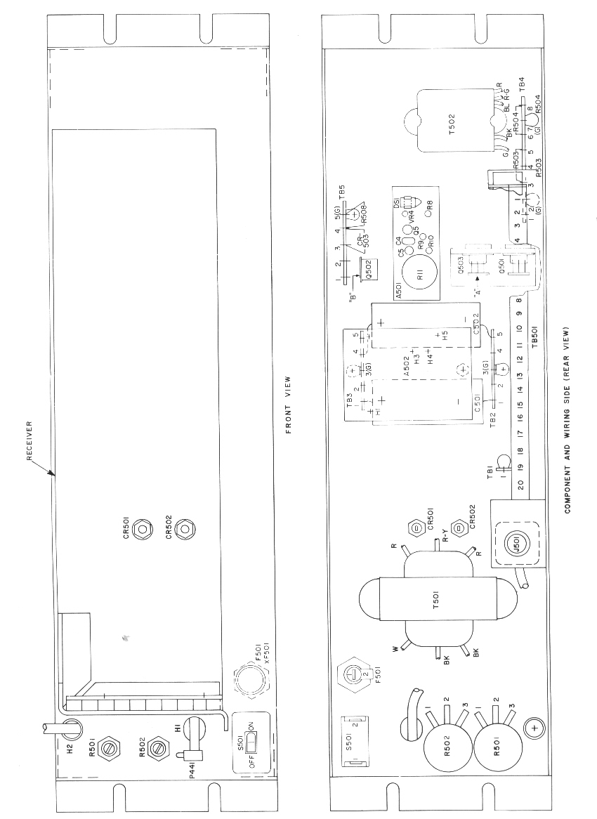
In the photo above, there are two silver looking panels inside the Deskmate cabinet. The very top one is the horizontally mounted Transmit strip. Below the transmit strip is a gold fan/air ducting area. Below that is the other silver strip, the receiver. Both the RX & TX can be swung out for service. Both covers on these strips have built in test point connectors. The model shown above was a special for the US government. It has a built in test set meter. It also contains a built in simple repeater controller. Not shown in this photo is the more standard 'rack' of small cards used to support base and repeater stations. The same series of control cards was carried into use on the Master II series. These are not very important, as most hams discard these controls and use a new repeater controller such as an NHRC. Both sides of the Deskmate box are key locked and come off for servicing . The side not shown provides access to the AC high voltage PS and screw terminal access points.

The following is some data I have for this series:

Model Number See link below
EP-38 AC Power
EP-39 RX Power supply
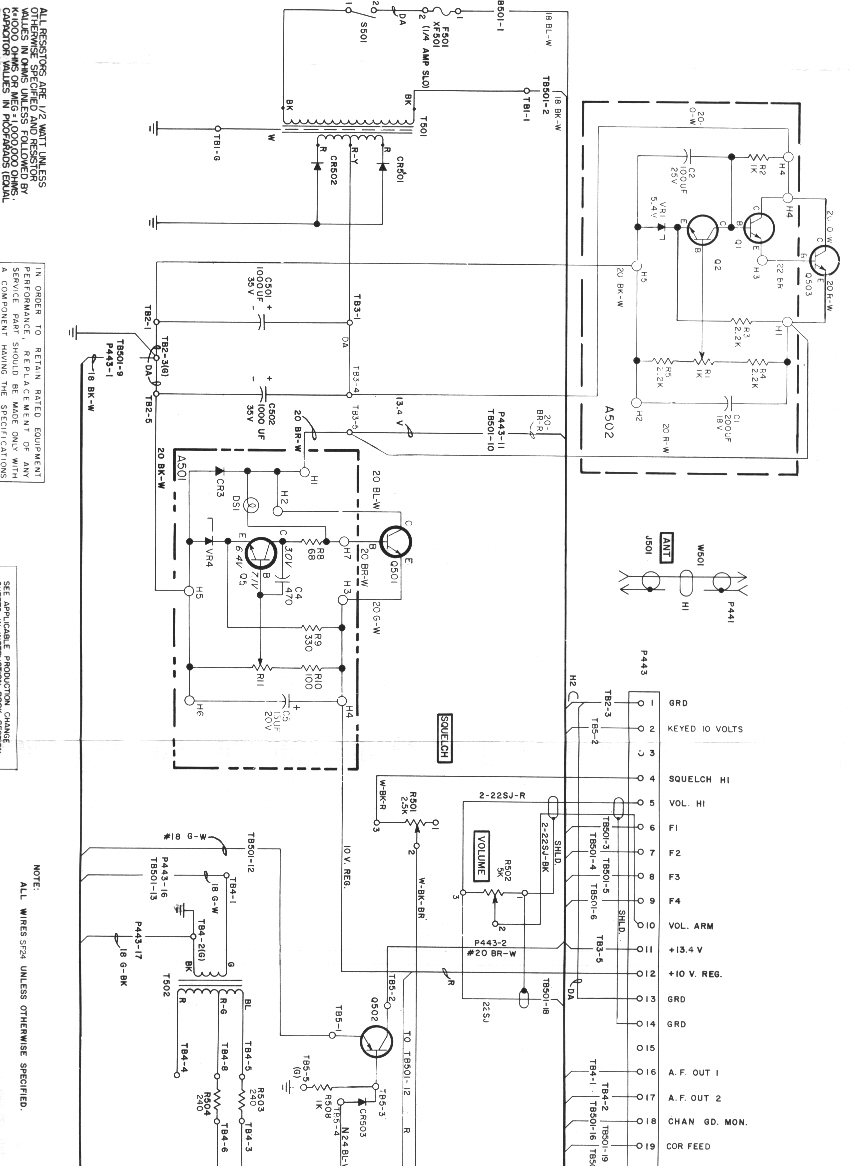
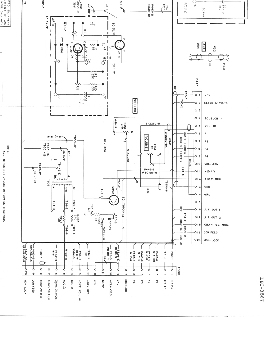
TX strip connector See link below
Rx strip connector See link below
EP 38 connector See link below
GE Master Pro  See link below
Wiring in a TS-32 to the RX strip
W4XE Mpro Tips See link below
Miscellaneous GE Master Pro Tips from fellow hams See link below
WB5WPA GE Master Pro  See link below
UHF transmitter Woes.

Excellent!

http://www.dallas.net/~jvpoll/ge_mastr_pro/GeMastrPro.htm

 

An EP38 power supply pictorial http://www.dallas.net/~jvpoll/Ge_MastrProPS/PowerSupply.htm

 

       

 


.

Home | Mpro model # | TX PINS | RX PINS | AC EP38 PINOUTS | TIPS1 | W4XE TIPS | WB5WPA

This site was last updated 01/02/07