Antena portátil dual band para satélites
tipo Moxon-Open-Sleeve
por PY4ZBZ em 28-03-2016 rev. 14-12-2023
Veja também : 2 elementos em VHF e 5 em UHF
2 elementos em VHF e 4 em UHF : MoxonZBZ:
Aproveitei, do ótimo projeto do Zilvis LY2SS, a parte Moxon de VHF, e aumentei um elemento em UHF, ficando com a parte UHF da minha open-sleeve de 2007, e passando o ganho de 6,63 dBd para 8,28 dBd (10,43 dBi) em UHF.
O ganho em VHF é de 4,05 dBd.
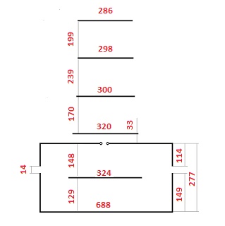
Medidas da antena em mm, para elementos de 6 mm de diâmetro:

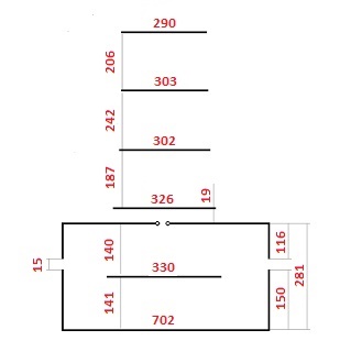
Medidas da antena em mm, para elementos de 4 mm de diâmetro:

Medidas da antena em mm, para elementos de 3,2 mm de diâmetro:
Medidas da antena em mm, para elementos de 2,5 mm de diâmetro:

Medidas da antena em mm, para elementos de 1,5 mm de diâmetro:

Diagrama de irradiação em VHF:

Diagrama de irradiação em UHF:

O arquivo para o MMANA está aqui.
Essa antena foi batizada pelo Hermes PQ2HX de MoxonZBZ ! Obrigado Hermes !
A foto seguinte mostra uma implementação desmontável da antena, pelo PQ2HX ! :

A foto seguinte mostra uma implementação da antena MoxonZBZ pelo Lima PW8PM:
Click na imagem acima para ver a antena em operação.
Veja aqui outro vídeo feito pelo Hermes PQ2HX:
Veja aqui uma ótima montagem da MoxonZBZ pelo Tiago PY5TI
2 elementos em VHF e 5 em UHF:
A antena seguinte foi projetada por LY3LP, com 5 elementos em UHF, ganho em UHF de 9,25 dBd :

Medidas em mm, diâmetro dos elementos 3,2 mm. Em vermelho para 6,35 mm de diâmetro.
A figura seguinte é o diagrama de irradiação em UHF. Em VHF é igual à antena acima.

O arquivo para o MMANA está aqui. Aqui o arquivo gerado pelo Sandro PY1PE
A figura seguinte mostra as medidas da Moxon-sleeve de 7 elementos para varetas de 2,5 mm de diametro:

O arquivo para o MMANA está aqui.
Veja aqui essa antena em operação com Luciano PY5LF, com monitoração automática pela sua estação fixa !:
Veja aqui um artigo sobre a antena Moxon.
73 de Roland.