The Wiring of the
Radio/Repeater |
These Are Small Images
(Click the Image to see Larger
Ones)
|
Notes :
(Not
everything is here yet. Still
working on them. Ed - KB8QEU)
|
1
|
Section
1 :
The Repeater Componet Layout and
Wiring Diagram
|
2
|
Section
2 :
The Simplex Componet Layout and
Wiring Diagram
|
| 3 |
Section 3 :
The Remote Base Componet Layout and
Wiring Diagram
|
4
|
If
wrong, those "Drawing Names" on the
Size "D" Drawings are to be changed
to reflect the correct file name,
ASAP!!!
Please let me know!
|
|
|
SECTION 1
The Repeater Wiring
|
Component Layout
|
The Components in this image
are in color.
 |
Wiring Layout
|
Audio and Control to and
from the radios

|
The Wiring of the 120 VAC and 12 VDC

|
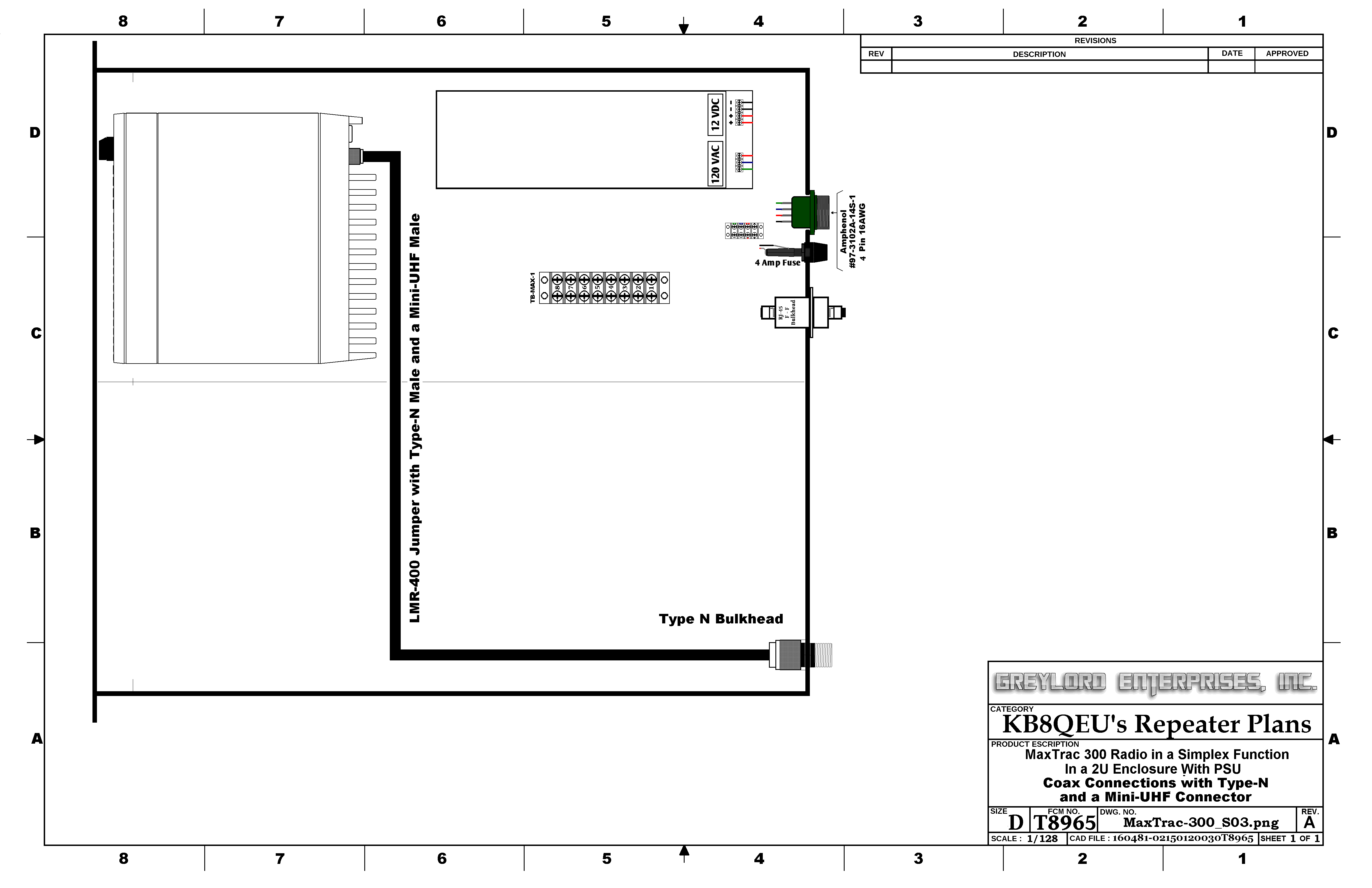
The Coax Jumpering

|
|
SECTION 2
Simplex Radio Wiring
|
Component Layout
|

|
Wiring Layout
|
Audio and Control to and from the
Transceiver

|
The Wiring of the 120 VAC and
12 VDC

|
The Coax Jumpering

|
|
SECTION 3
The Remote Base Wiring
|
Component Layout
|
|
Wiring Layout
|
Audio
and Control to and from the transceiver
|
The Wiring of the 120 VAC and
12 VDC
|
The Coax Jumpering
|
|
|